window.parent.document.getElementById('hy_con').style.display='';window.parent.document.getElementById('hy_con').innerHTML='
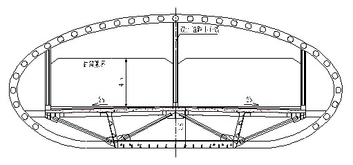
全封闭声屏障结构示意图

全封闭声屏障结构示意图
   

全封闭声屏障采用组装的轻钢结构形式,由支承钢结构、顶部吸声隔声结构、吸声隔声屏体、隔声采光窗、顶部隔声构件及排风口组成,支承钢结构由两侧立柱、中间立柱、钢梁及檩条组成,吸声隔声屏体与隔声采光窗组成了全封闭声屏障两侧的隔声墙体,顶部隔声构件根据采光、景观及排风口的需要进行组合。
   
钢立柱用地脚预埋螺栓(或种植螺栓)固定在道路防撞墙上,两侧的吸声隔声屏体与隔声采光窗插在钢立柱槽中,顶部的隔声构件将固定在钢结构的檩条或钢梁上,所有钢结构外表面三度防腐处理,所有吸声屏外表面静电喷涂。
   
初步拟定声屏障立柱及钢梁的轴距为2.125m,隔声墙体的吸声隔声屏体和隔声采光窗的标准宽度为2.125m,桥面下部隔声采用2厚彩铝板制作,灯光孔采用透明8厚亚克力板。
';